İTÜ İŞLETME FAKÜLTESİ ULUSAL MİMARİ PROJE YARIŞMASI, KATILIMCI

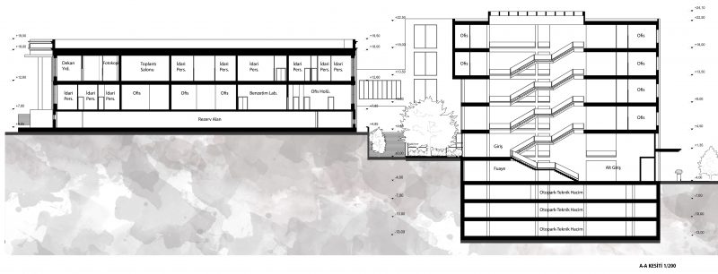
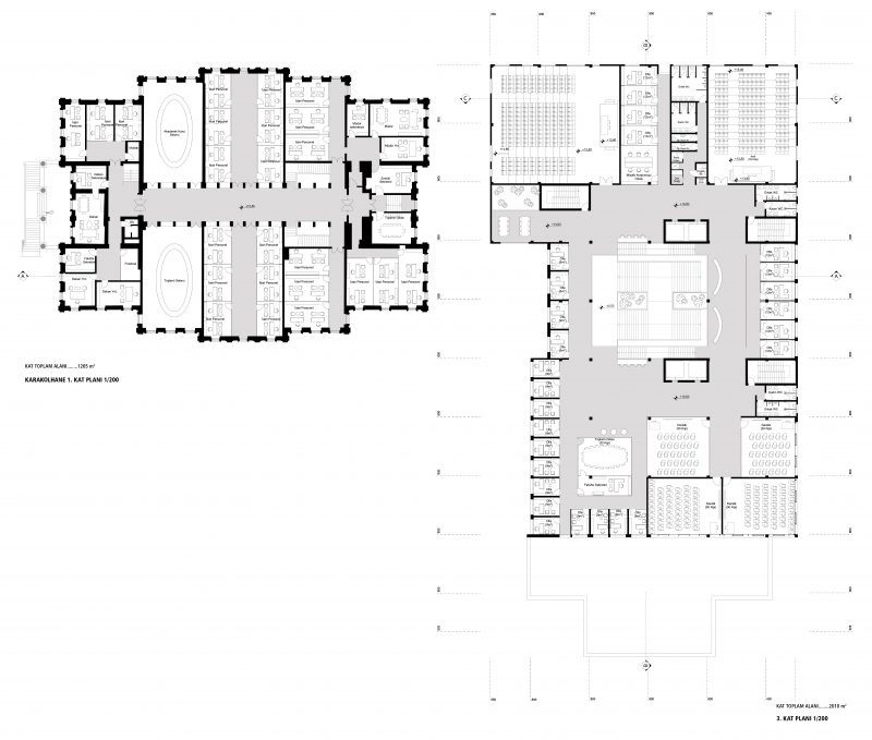
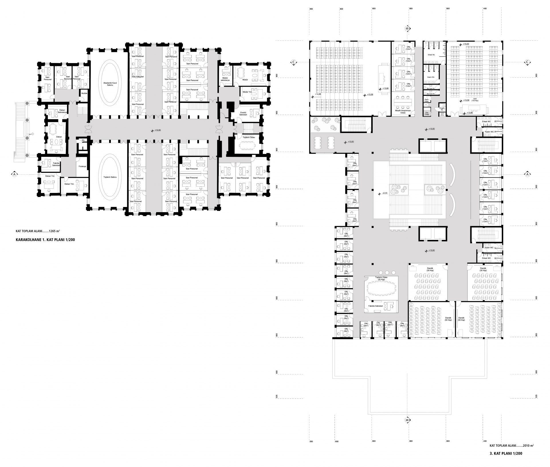
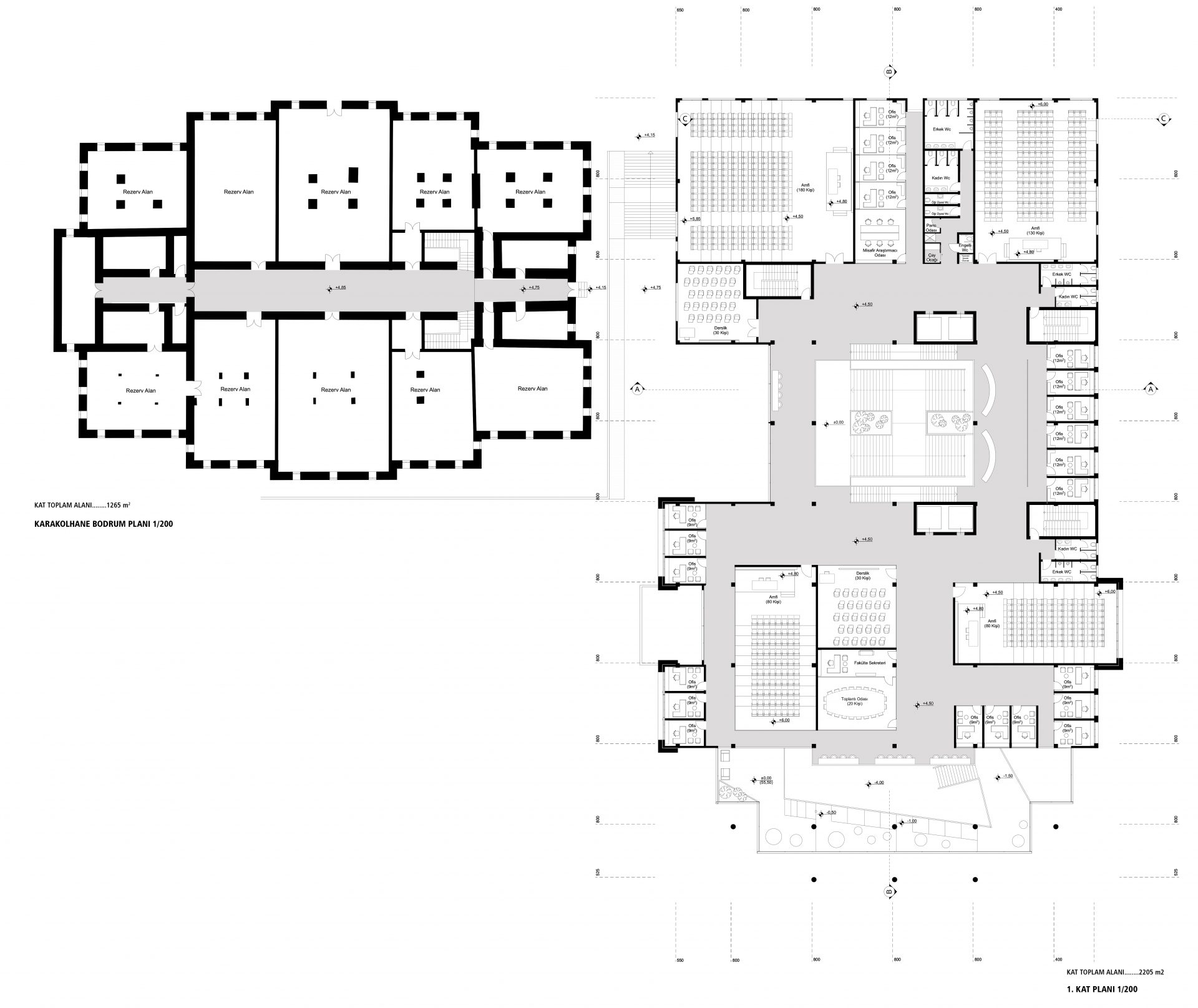
İstanbul Teknik Üniversitesi’nin İstanbul, Maçka’da bulunan İşletme Fakülte binasının yenilenmesi amacı ile açtığı yarışma için önerimizde 25.825 m2 kullanım alanına sahip yapının, fakülte bünyesinde hizmet veren Tarihi Karakol Binası ile ilişki kurarken karakol binası ile yarışmadan, kütlesi ile onu ezmeye ve taklit etmeye çalışamadan ancak kendi geometirisi, malzemesi ve özgünlüğünden ödün vermeden kurgulanması ana tasarım yaklaşımı olarak belirlenmiştir. Binanın farklı kotlarla ilişkili bir arazi üzerinde konumlanacak olması iki kot arasındaki bağlantının güçlendirilmesine olanak tanımıştır. Tasarımda öğrenci motivasyonuna önemli katkıda bulunacak sosyal alanların özellikle kotlar arası bağlantıyı sağlayan katlara yerleştirilmesine ve bu mekanların modern, konforlu, fonksiyonel, öğrenciye değerli olduğunu hissettirecek ve çağdaş eğitim anlayışına uygun özelliklere sahip olmasına önem verilmiştir. Ayrıca sosyal alanların arazinin en değerli noktası olan Süleyman Seba Caddesi’ne bakan köşede konumlandırılması ve şeffaf, büyük mekanlar oluşturulması yapının dikkat çekiciliğini ve çevreyle kurduğu ilişkisini güçlendirmektedir.

Konum: İstanbul

Yıl: 2019

Tip: Eğitim Yapısı

Proje Alanı: 25.825 m2

Yorum Yap: