BURSA ATATÜRK SPOR SALONU ULUSAL MİMARİ PROJE YARIŞMASI, KATILIMCI

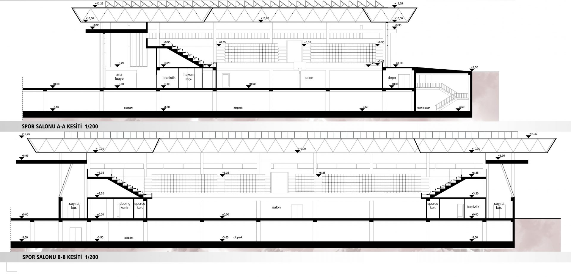
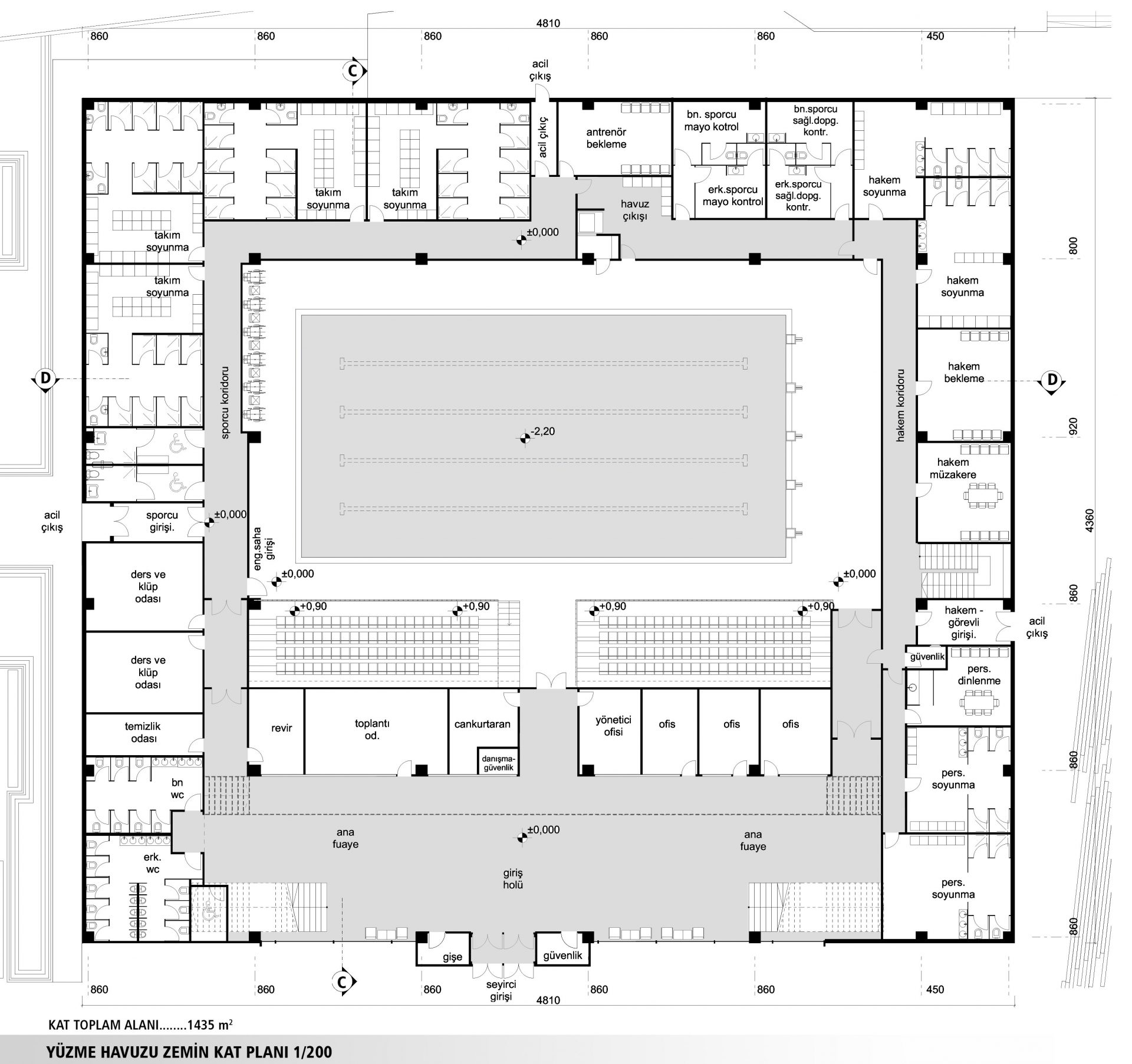
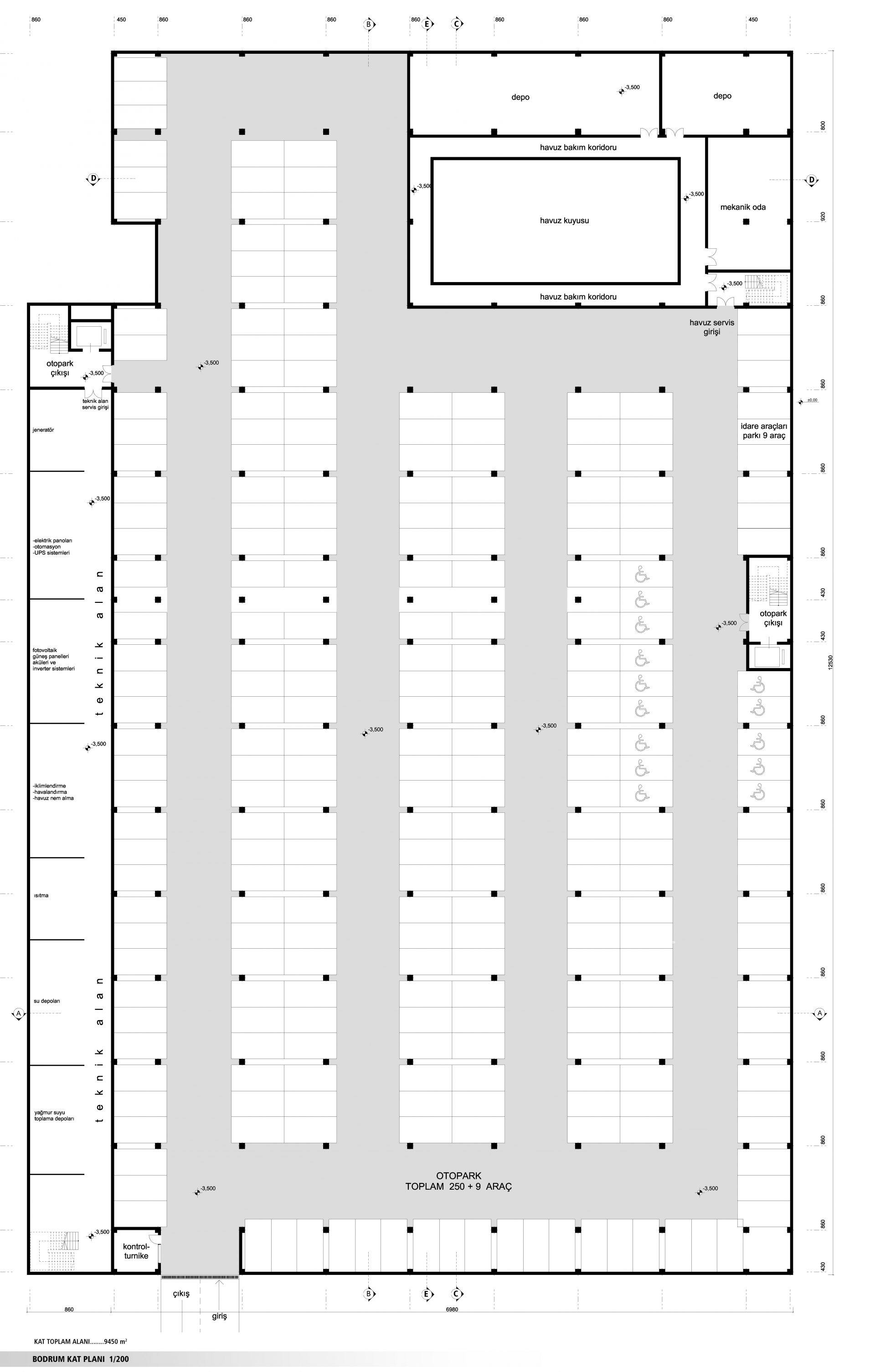
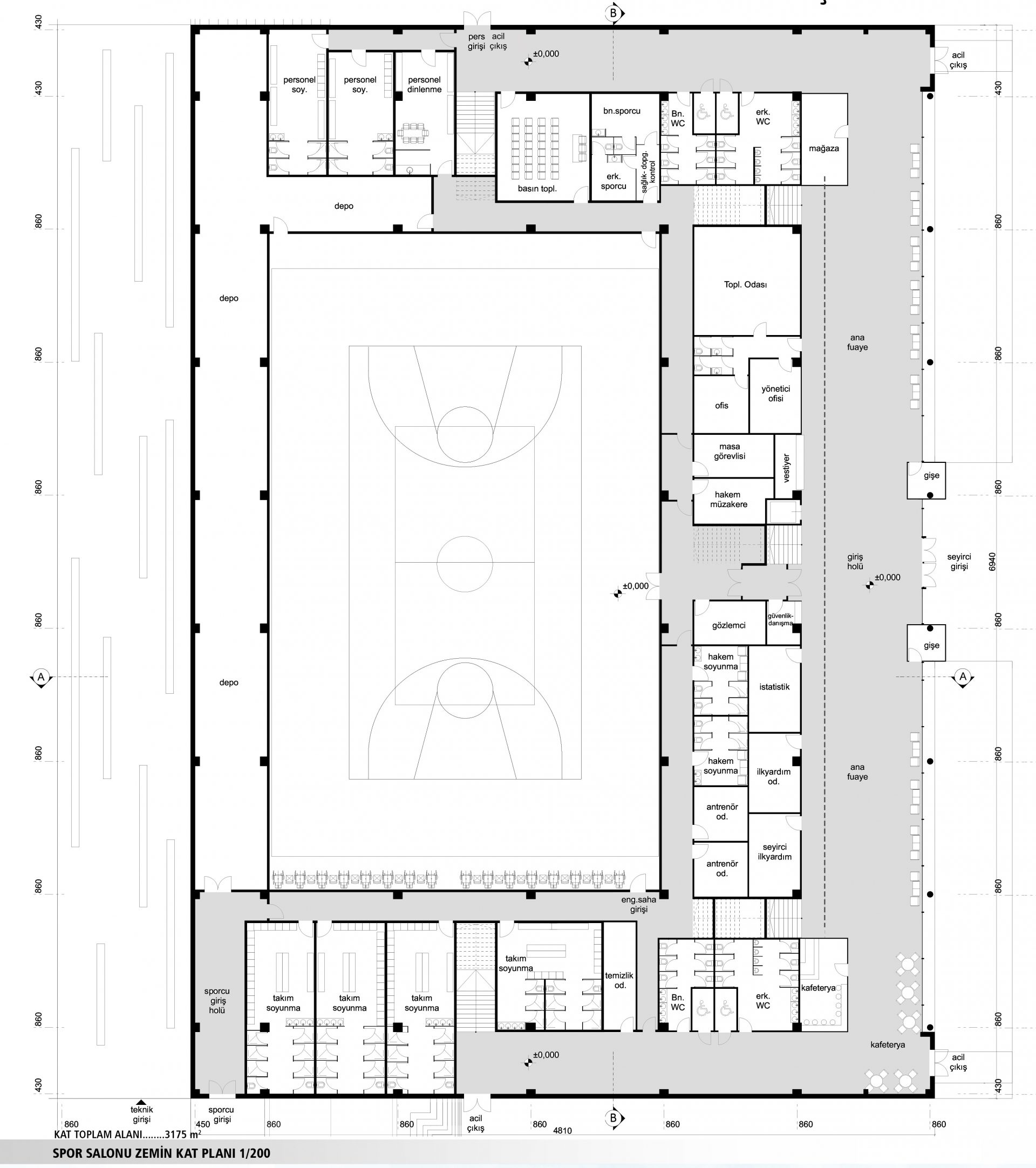
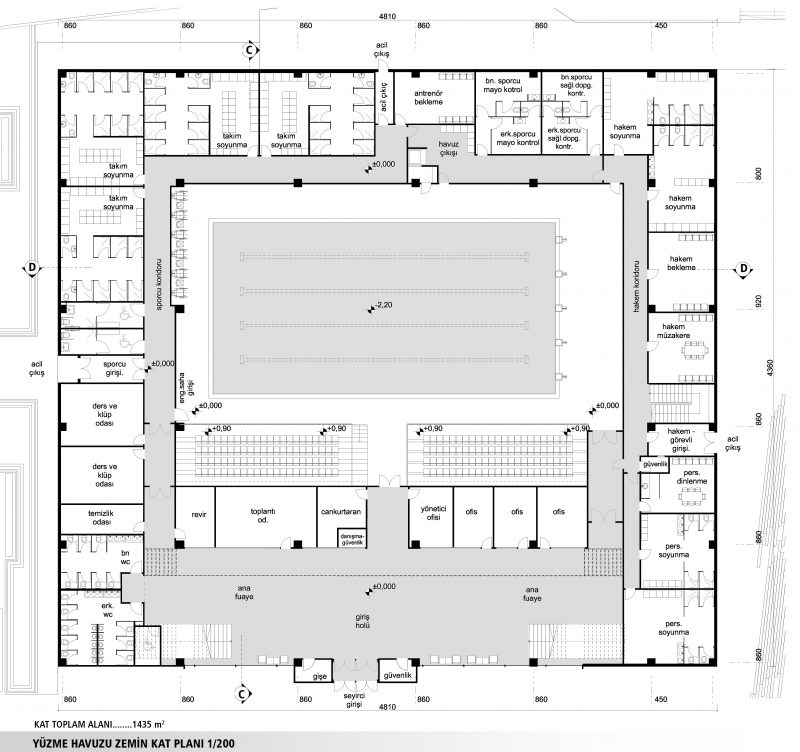
Mimarlar Odası Bursa Şubesi ve Bursa Büyük Şehir Belediyesi tarafından açılan Bursa Atatürk Spor Salonu Mimari Proje yarışması için ofisimiz tarafından önerilen projede kentlinin sıklıkla tercih ettiği iki önemli parkın Atatürk Spor Salonu ile güçlü bir ilişki kurması projenin ana tasarım kararlarından biri olmuştur. Projede peyzaj ve açık alanların kurgusunda kentsel açık alan olarak hizmet verebilmesine, farklı etkinliklere imkan tanımasına ve kullanım amacına yönelik olarak geniş toplanma alanları oluşmasına önem verilmiştir. Projenin spor yapısı olması tasarımın odağının; yeşil alanlar ile sarmalanmış, şeffaf yapı malzemeleri ile doğal ışığın ana mekanlara taşındığı ve çevreyle ilişkinin güçlendirildiği, insan ölçeğinden uzaklaşmayan, kapsayıcı bir yaklaşım çerçevesinde gelişmesini sağlamıştır. Tüm bu kapsamlar doğrultusunda Atatürk Spor Salonu çevresindeki yerleşim bölgeleri ve kentsel yeşil alanlarla ilişkili, ekolojik, sürdürülebilir, esnek kullanım imkanı sunan kamusal bir mekan olarak tasarlanmıştır. Spor Salonu 1000 kişilik bir seyir kapasitesine sahip olmakla birlikte hem basketbol hem de voleybol müsabakaları için uygun donanıma sahiptir. Yüzme havuzu yapısı ise 450 kişilik seyirci kapasitesine ve 25 metre uzunluğunda müsabaka ve antremanların yapılabileceği bir havuza sahiptir.

Konum: Bursa 

Yıl: 2020

Tip: Spor Yapısı

Proje Alanı: 15.285 m2

Yorum Yap: