SÜLEYMANPAŞA BELEDİYE HİZMET BİNASI ULUSAL MİMARİ PROJE YARIŞMASI, KATILIMCI

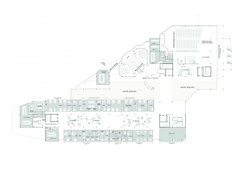
Tekirdağ Büyükşehir Belediyesi’ne bağlı belediyelerden biri olan Süleymanpaşa Belediyesi için açılan hizmet binası ulusal mimari proje yarışmasında ofis olarak hazırlamış olduğumuz proje toplam 26.655 m2 kullanım alanına sahiptir. Belediye hizmet binası işleyiş olarak belediye idari birimleri, sosyal-kültürel ve ticari üniteleri yapısında bulunduran karma bir kullanıma sahiptir. Bu karma kullanım projenin konseptinin iki farklı blok ve bu bloklar arası bağlantı kurgusu olması gerekliliğini açığa çıkarmıştır. Arazinin kot farkından da yararlanılarak konferans salonu, yemekhane gibi birimler arka blokta, belediye idari birimler ise ön taraftaki tek blokta çözülmüştür. Bu iki blok arasında geçiş üstten ışık alabilen cam tavanlı bir avlu/iç sokak ile sağlanmıştır. Kentliye hizmet edecek bir kamusal yapı her zaman kentli için davetkar ve şeffaf olmalıdır. Bu sebeple projede belediye binasının kentliyi içine çeken ve kullanımda zorluklar çıkarmayan bir sistemle çözülmesi önemli olmuştur.

Konum: Tekirdağ

Yıl: 2017

Tip: Kamu Yapısı

Proje Alanı: 26.655 m2

Yorum Yap: